Description
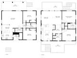
668 S Waccamaw Drive is a beautifully updated four-bedroom, four-bathroom, ocean view second-row home just steps from public beach access in Garden City Beach, South Carolina. Designed as a duplex-style retreat, it blends modern comfort with classic coastal charm and offers exceptional flexibility as a full-time residence, vacation home, multigenerational getaway, or income-producing property. With two fully separate living areas—each with its own utilities, full kitchen, and private entrance—you can enjoy the entire home, rent one or both levels individually. Upstairs features refinished original handcrafted oak hardwood flooring throughout, abundant natural light, and thoughtful updates that create a refined beach atmosphere. The updated kitchen includes quartz countertops, stainless steel Whirlpool appliances, custom built-ins, breakfast bar, and a dedicated workspace. Enjoy ocean sunrises from the kitchen, living room, and owner’s suite. The primary bedroom highlights ocean views, oak flooring, Lowcountry style, and an updated en-suite bath. The spacious guest bedroom provides views of sunsets over the marsh. The downstairs level offers two spacious bedrooms with custom built-ins, one and a half baths with laundry, a full kitchen with modern appliances, a dining area, and an oversized recreation/living space. It’s designed for effortless beachside living with ceramic tile flooring and durable, moisture-resistant materials, including foam insulation, PVC wainscoting, and Durock™ walls. Renovations by the current owner include new ductwork, updated HVAC systems, new water heaters, quartz countertops, upgraded flooring, bathroom updates, modern appliances, and more. Outdoor living shines with a covered front porch offering ocean views and a spacious back deck. The large backyard has ample room for a new pool, and the generous carport provides parking plus RV or boat storage. Located just steps from the shoreline and minutes from the Murrells Inlet MarshWalk, Garden City Pier, Marlin Quay Marina, Brookgreen Gardens, golf courses, state parks, shopping, and dining. Whether you’re seeking a turnkey beach home, a high-performing rental, or a flexible multigenerational retreat, this second-row beach property offers outstanding potential in one of South Carolina’s most desirable coastal communities. Take a moment to view the 3D floor plan and virtual walkthrough, then contact the listing agent or your buyer’s agent to schedule a???????????????????????? showing.
-
4BEDS
-
0.19ACRES
-
3BATHS
-
11/2 BATHS
-
2,684SQFT
-
$402$/SQFT
School Information
Description
668 S Waccamaw Drive is a beautifully updated four-bedroom, four-bathroom, ocean view second-row home just steps from public beach access in Garden City Beach, South Carolina. Designed as a duplex-style retreat, it blends modern comfort with classic coastal charm and offers exceptional flexibility as a full-time residence, vacation home, multigenerational getaway, or income-producing property. With two fully separate living areas—each with its own utilities, full kitchen, and private entrance—you can enjoy the entire home, rent one or both levels individually. Upstairs features refinished original handcrafted oak hardwood flooring throughout, abundant natural light, and thoughtful updates that create a refined beach atmosphere. The updated kitchen includes quartz countertops, stainless steel Whirlpool appliances, custom built-ins, breakfast bar, and a dedicated workspace. Enjoy ocean sunrises from the kitchen, living room, and owner’s suite. The primary bedroom highlights ocean views, oak flooring, Lowcountry style, and an updated en-suite bath. The spacious guest bedroom provides views of sunsets over the marsh. The downstairs level offers two spacious bedrooms with custom built-ins, one and a half baths with laundry, a full kitchen with modern appliances, a dining area, and an oversized recreation/living space. It’s designed for effortless beachside living with ceramic tile flooring and durable, moisture-resistant materials, including foam insulation, PVC wainscoting, and Durock™ walls. Renovations by the current owner include new ductwork, updated HVAC systems, new water heaters, quartz countertops, upgraded flooring, bathroom updates, modern appliances, and more. Outdoor living shines with a covered front porch offering ocean views and a spacious back deck. The large backyard has ample room for a new pool, and the generous carport provides parking plus RV or boat storage. Located just steps from the shoreline and minutes from the Murrells Inlet MarshWalk, Garden City Pier, Marlin Quay Marina, Brookgreen Gardens, golf courses, state parks, shopping, and dining. Whether you’re seeking a turnkey beach home, a high-performing rental, or a flexible multigenerational retreat, this second-row beach property offers outstanding potential in one of South Carolina’s most desirable coastal communities. Take a moment to view the 3D floor plan and virtual walkthrough, then contact the listing agent or your buyer’s agent to schedule a???????????????????????? showing.
Related Properties
© 2026 Coastal Carolinas Association of REALTORS® MLS. All rights reserved. IDX information is provided exclusively for consumers' personal, non-commercial use and may not be used for any purpose other than to identify prospective properties consumers may be interested in purchasing. Information is deemed reliable but is not guaranteed accurate by the MLS or Sollecito Advantage Group / Coldwell Banker Sea Coast Advantage. The data relating to real estate for sale or lease on this web site comes in part from CCAR. Real estate listings held by brokerage firms other than Sollecito Advantage Group / Coldwell Banker Sea Coast Advantage are marked with the CCAR logo or an abbreviated logo and detailed information about them includes the name of the listing broker.
Data last updated: 2026-03-17T08:20:42.557.